Skip to content
Hinnad ja plaanid
Asukoht
Galerii
Viimistlused
Ehitusinfo
Müügiinfo
Arendajast
Kontakt
Hinnad ja plaanid
Asukoht
Galerii
Viimistlused
Ehitusinfo
Müügiinfo
Arendajast
Kontakt
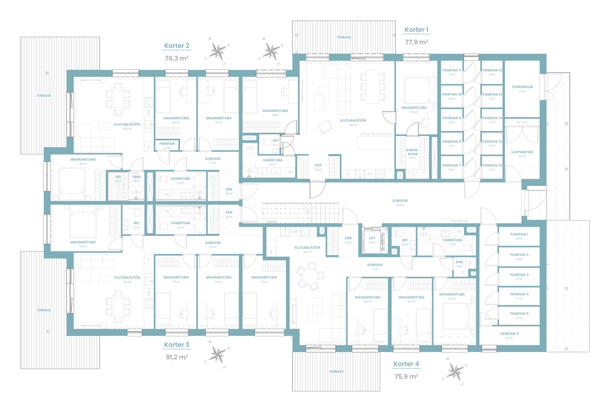
Tormi 3 korter 1
Korteriplaan
249 900€
1. korrus
Korteri pindala: 77.40 m²
Rõdu suurus: Terrass
Tubade arv: 3
Võta ühendust
Korteriplaan
Korruseplaan